182A Blyth Street, Brunswick East
House
When Value Meets Your Demands...
Designed with space in mind, is this well-built late 90's town residence, which gets everything right when it comes to functionality, in this truly spoilt location, being sandwiched between Lygon & Nicholson Streets lifestyle & convenience choices and an easy stroll to the inner norths most admired place to fall in love with earth again, CERES.
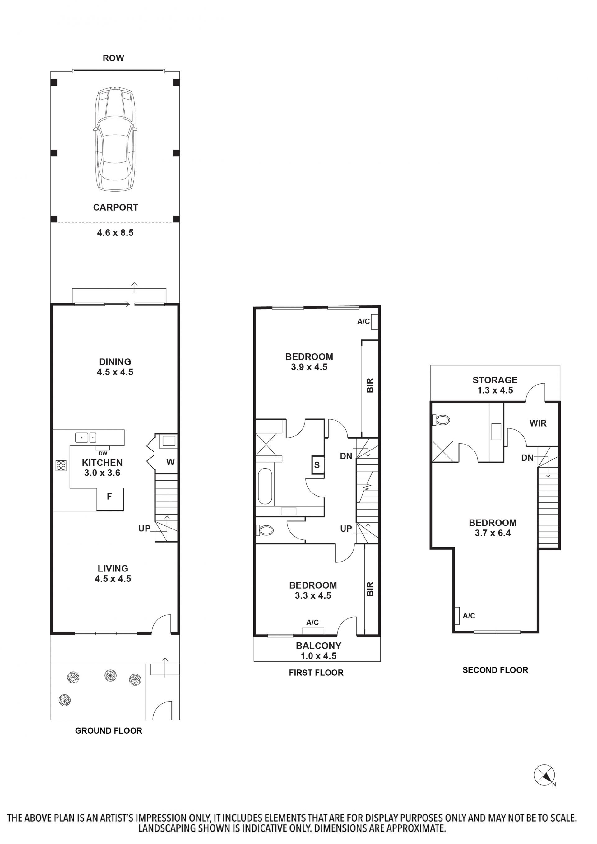
Set over 3 exciting & independent levels, the totally private ground floor area showcases a welcoming combination of designated living and dining zones centred around a well-planned kitchen which naturally proceeds outdoors to undercover entertaining options. The middle level thoughtfully separates the two mirrored robed bedrooms that share a family bathroom and separate toilet. The crowingly glory of this home is the oversized master bedroom which offers total independence on the 3rd floor with its own bathroom and walk in robe.
Other highlights include: Easy auto car parking, split system cooling/heating units, dishwasher, gas cooking and so much more.
Your Affordable Chance...
Set over 3 exciting & independent levels, the totally private ground floor area showcases a welcoming combination of designated living and dining zones centred around a well-planned kitchen which naturally proceeds outdoors to undercover entertaining options. The middle level thoughtfully separates the two mirrored robed bedrooms that share a family bathroom and separate toilet. The crowingly glory of this home is the oversized master bedroom which offers total independence on the 3rd floor with its own bathroom and walk in robe.
Other highlights include: Easy auto car parking, split system cooling/heating units, dishwasher, gas cooking and so much more.
Your Affordable Chance...
