6 Robbs Parade, NORTHCOTE
House
A Magnificent Triumph...
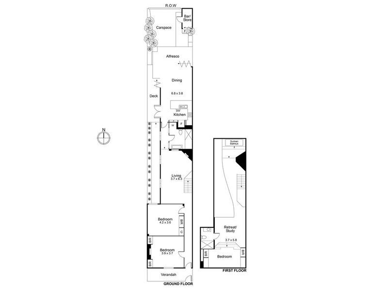
Preserved and exquisitely enhanced by an inspired contemporary design, this exceptional 3 bedroom, 2 bathroom double storey Victorian residence seamlessly blends cutting edge excellence with a gritty industrial edge, creating a truly very special and unforgettable family domain.
Evocative detail such as exposed brick walls, rich timber exposed beams, high ceilings, original doors and a beautifully custom made decorative staircase are all individual statements of style and sophistication. A gracious formal living room with an open fire setting is complemented by the dramatic staircase, and steps down into a sleek gourmet Smeg kitchen and inviting dining area, opening onto an idyllic north facing courtyard garden, with built in bbq and adorable barn style bar /storage shed. The loft domain master bedroom suite showcases a romantic separate bath setting and casual sitting and study area.
Great care has been taken to ensure quality finishes, including: Hydronic heating, granite bench tops, Australian hard wood timber floorboards, hand blown glass light fittings, split system cooling, walk in double showers, robed bedrooms and auto courtyard with car access.
A labour of love for these meticulous vendors, who have not only totally transformed this home, but have also enjoyed the incredible transformation of High Street Northcote, with its increase in good local bars, restaurants and cafes - all while maintaining the convenience of Northcote Plaza, the easy commute into the city on the 86 tram and All Nations Park at their front door.
Must Be Seen To Be Believed...
Evocative detail such as exposed brick walls, rich timber exposed beams, high ceilings, original doors and a beautifully custom made decorative staircase are all individual statements of style and sophistication. A gracious formal living room with an open fire setting is complemented by the dramatic staircase, and steps down into a sleek gourmet Smeg kitchen and inviting dining area, opening onto an idyllic north facing courtyard garden, with built in bbq and adorable barn style bar /storage shed. The loft domain master bedroom suite showcases a romantic separate bath setting and casual sitting and study area.
Great care has been taken to ensure quality finishes, including: Hydronic heating, granite bench tops, Australian hard wood timber floorboards, hand blown glass light fittings, split system cooling, walk in double showers, robed bedrooms and auto courtyard with car access.
A labour of love for these meticulous vendors, who have not only totally transformed this home, but have also enjoyed the incredible transformation of High Street Northcote, with its increase in good local bars, restaurants and cafes - all while maintaining the convenience of Northcote Plaza, the easy commute into the city on the 86 tram and All Nations Park at their front door.
Must Be Seen To Be Believed...
