5/16 Kemp Street, Thornbury
Apartment
Big, Bright & Brilliant...
Retro influenced inside & out, this ground floor apartment is extra spacious and offers ultra cool you can afford. Located within easy walking distance to St Georges Rd tram, Croxton Train Station and cosmopolitan High Streets array of great cafes.
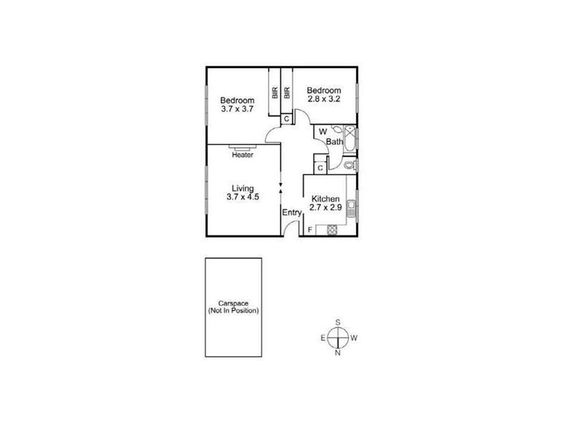
A preferred large floor plan offers loads more space than others & comprises of a entrance hall way, sparkling separate eat in kitchen, 2 big robed bedrooms, smartly updated bathroom that cleverly separates the toilet and incorporates laundry facilities.
Step Inside & Be Surprised...
A preferred large floor plan offers loads more space than others & comprises of a entrance hall way, sparkling separate eat in kitchen, 2 big robed bedrooms, smartly updated bathroom that cleverly separates the toilet and incorporates laundry facilities.
Step Inside & Be Surprised...
